ようこそ ゲスト 様

千葉市中央区 賃貸店舗・事務所

千葉市中央区 賃貸店舗・事務所

お問い合わせ番号:f11023-46954
賃貸店舗・事務所
千葉市中央区弁天2
JR総武線 千葉駅 ( 徒歩 3分 )
賃料 40.50万円
(坪単価:1.62万円)
駅近くの分かりやすい立地です。
千葉公園通り沿い。
~◆貸店舗、貸事務所専門サイト◆~
千葉の店舗探し、事務所探し、貸地は
『テナントスタイル』へお任せ下さい♪
管理費 5,000円(税別)
-
保証金
解約引
6ヶ月
-
敷金
礼金
-
1ヶ月(税別)
建物/専有
面積
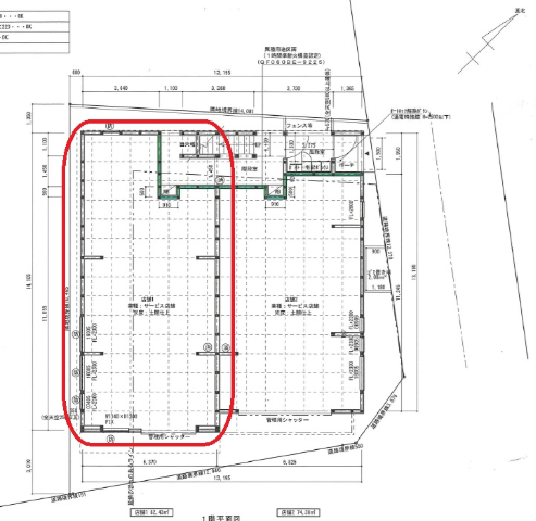
82.54m2
(24.96坪)
土地面積 - 築年月 2025年3月
(令和7年3月)
駐車場 - 所在階 1階 地上階数
地下階数
3階
-
現況 空き
入居/引渡 相談 
契約期間 3年
取引 仲介
物件登録日 2025年10月14日
情報更新日 2025年10月14日
■現況渡し
■都市ガス・公営水道・公共下水
■角地

※保証金償却:1ヶ月
※家賃保証会社加入/要
千葉市中央区 賃貸店舗・事務所 のことならお気軽にご相談ください。
テナントスタイル本店
TEL:043-420-8742
営業時間:10:00-18:00
メールでのお問い合わせ LINEでのお問い合わせ

お電話の場合は「テナントショップを見ました。物件番号は < f11023-46954 > です」と伝えていただくとスムーズにお応えできます。

  • 借りる
  • 店舗を探す
  • 事務所・事業所を探す
  • 居抜き物件
非公開物件情報
一般公開物件
532
会員用非公開物件
19
  • ログイン
  • 新規登録
  • 貸地、売地
  • 倉庫、工場
  • 買う
  • 売地を探す
フリーワード検索 [New!]
スペース区切りの複合語句検索はできません

  • 依頼する
  • 新着物件!未公開物件!地元に詳しい!
  • 物件リクエスト
  • 居抜きのまま閉店で開店費用を大幅に削減
  • スマホで物件検索
  • 実績紹介
  • 物件募集
  • 物件管理
  • 会社概要・アクセス
  • 採用情報
  • 空き店舗情報