ようこそ ゲスト 様

佐倉市 賃貸店舗・事務所

佐倉市 賃貸店舗・事務所

お問い合わせ番号:f11023-47149
賃貸店舗・事務所
佐倉市上座
京成本線 ユーカリが丘駅 ( 徒歩 7分 )
賃料 10.20万円(税別)
(坪単価:0.56万円)
落ち着いた環境、カフェに最適。
駅徒歩7分、静かに過ごせるナチュラルな場所。
・-・貸店舗、貸事務所専門サイト・-・
千葉の店舗探し、事務所探し、貸地は
『テナントスタイル』へお任せ下さい
管理費 3,000円
-
保証金
解約引
-
-
敷金
礼金
20.4万円
1ヶ月(税別)
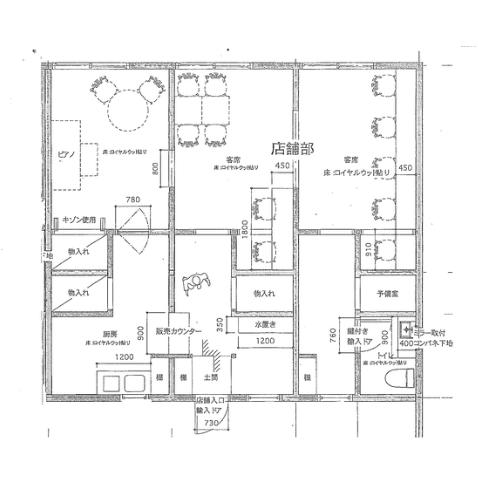
建物/専有
面積
60.48m2
(18.29坪)
土地面積 - 築年月 1993年4月
(平成5年4月)
駐車場 有り有料/2台
(5,000円)
所在階 1階 地上階数
地下階数
2階
-
構造 木造
現況 空き
入居/引渡 即時 
契約期間 2年
取引 仲介
物件登録日 2025年12月18日
情報更新日 2025年12月18日
■トイレ、シャッター
■ウォシュレット、照明残置物
佐倉市 賃貸店舗・事務所 のことならお気軽にご相談ください。
テナントスタイル本店
TEL:043-420-8742
営業時間:10:00-18:00
メールでのお問い合わせ LINEでのお問い合わせ

お電話の場合は「テナントショップを見ました。物件番号は < f11023-47149 > です」と伝えていただくとスムーズにお応えできます。

  • 借りる
  • 店舗を探す
  • 事務所・事業所を探す
  • 居抜き物件
非公開物件情報
一般公開物件
537
会員用非公開物件
20
  • ログイン
  • 新規登録
  • 貸地、売地
  • 倉庫、工場
  • 買う
  • 売地を探す
フリーワード検索 [New!]
スペース区切りの複合語句検索はできません

  • 依頼する
  • 新着物件!未公開物件!地元に詳しい!
  • 物件リクエスト
  • 居抜きのまま閉店で開店費用を大幅に削減
  • スマホで物件検索
  • 実績紹介
  • 物件募集
  • 物件管理
  • 会社概要・アクセス
  • 採用情報
  • 空き店舗情報