市川市 賃貸店舗・事務所

市川市 賃貸店舗・事務所

お問い合わせ番号:f11023-47163
賃貸店舗・事務所
市川市柏井町1
武蔵野線 船橋法典駅 ( 徒歩 17分 )
賃料 25.00万円(税別)
(坪単価:0.72万円)

~◆貸店舗、貸事務所専門サイト◆~
千葉の店舗探し、事務所探し、貸地は
『テナントスタイル』へお任せ下さい♪
管理費
共益費
-
6,600円
保証金
解約引
-
-
敷金
礼金
6ヶ月
-
建物/専有
面積
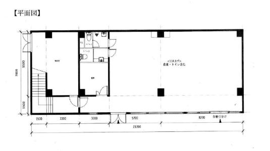
114.00m2
(34.48坪)
土地面積 - 築年月 1995年2月
(平成7年2月)
駐車場 空有/4台
(5,500円)
所在階 1階 地上階数
地下階数
-
-
構造 鉄筋コンクリート造(RC)
入居/引渡 相談 
契約期間 (定借)5年
取引 仲介
物件登録日 2026年1月5日
情報更新日 2026年1月5日
市川市 賃貸店舗・事務所 のことならお気軽にご相談ください。
テナントスタイル本店
TEL:043-420-8742
営業時間:10:00-18:00
メールでのお問い合わせ LINEでのお問い合わせ

お電話の場合は「テナントショップを見ました。物件番号は < f11023-47163 > です」と伝えていただくとスムーズにお応えできます。

  • 借りる
  • テナント・貸店舗を探す
  • オフィス・事務所を探す
  • 貸土地・借地を探す
  • 居抜き物件
  • 買う
  • 売買物件を探す
非公開物件情報
一般公開物件
536
会員用非公開物件
19
  • ログイン
  • 新規登録
  • 貸地、売地
  • 倉庫、工場
検索する
スペース区切りの複合語句検索はできません

  • スマホで物件検索
  • 実績紹介
  • 物件管理
  • 会社概要・アクセス
  • Instagram
  • レンタルオフィス