ようこそ ゲスト 様

船橋市 賃貸店舗・事務所

船橋市 賃貸店舗・事務所

お問い合わせ番号:f11023-46940
賃貸店舗・事務所
船橋市本中山7
東西線 原木中山駅 ( 徒歩 1分 )
賃料 33.00万円(税別)
(坪単価:1.04万円)
クリニック・医療系テナント限定です。
~貸店舗、貸事務所専門サイト~
♪千葉の店舗探し、事務所探し、貸地は『テナントスタイル』へお任せ下さい
管理費 -
-
保証金
解約引
-
-
敷金
礼金
4ヶ月
2ヶ月(税別)
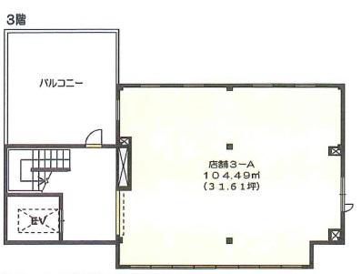
建物/専有
面積
104.49m2
(31.6坪)
土地面積 - 築年月 2024年3月
(令和6年3月)
駐車場 - 所在階 3階 地上階数
地下階数
3階
-
用途地域 第一種住居地域
現況 空き
入居/引渡 相談 
取引 仲介
物件登録日 2025年10月10日
情報更新日 2025年10月10日
■エレベーター
■床/コンクリート土間
■壁/石膏ボード
■天井/石膏ボード
■定期建物賃貸借契約/20年
■解約時敷金償却/30%

※家賃保証会社加入/要
船橋市 賃貸店舗・事務所 のことならお気軽にご相談ください。
テナントスタイル本店
TEL:043-420-8742
営業時間:10:00-18:00
メールでのお問い合わせ LINEでのお問い合わせ

お電話の場合は「テナントショップを見ました。物件番号は < f11023-46940 > です」と伝えていただくとスムーズにお応えできます。

  • 借りる
  • 店舗を探す
  • 事務所・事業所を探す
  • 居抜き物件
非公開物件情報
一般公開物件
559
会員用非公開物件
22
  • ログイン
  • 新規登録
  • 貸地、売地
  • 倉庫、工場
  • 買う
  • 売地を探す
フリーワード検索 [New!]
スペース区切りの複合語句検索はできません

  • 依頼する
  • 新着物件!未公開物件!地元に詳しい!
  • 物件リクエスト
  • 居抜きのまま閉店で開店費用を大幅に削減
  • スマホで物件検索
  • 実績紹介
  • 物件募集
  • 物件管理
  • 会社概要・アクセス
  • 採用情報
  • 空き店舗情報